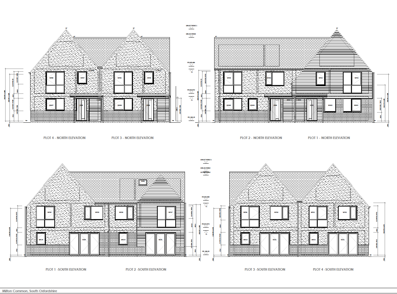
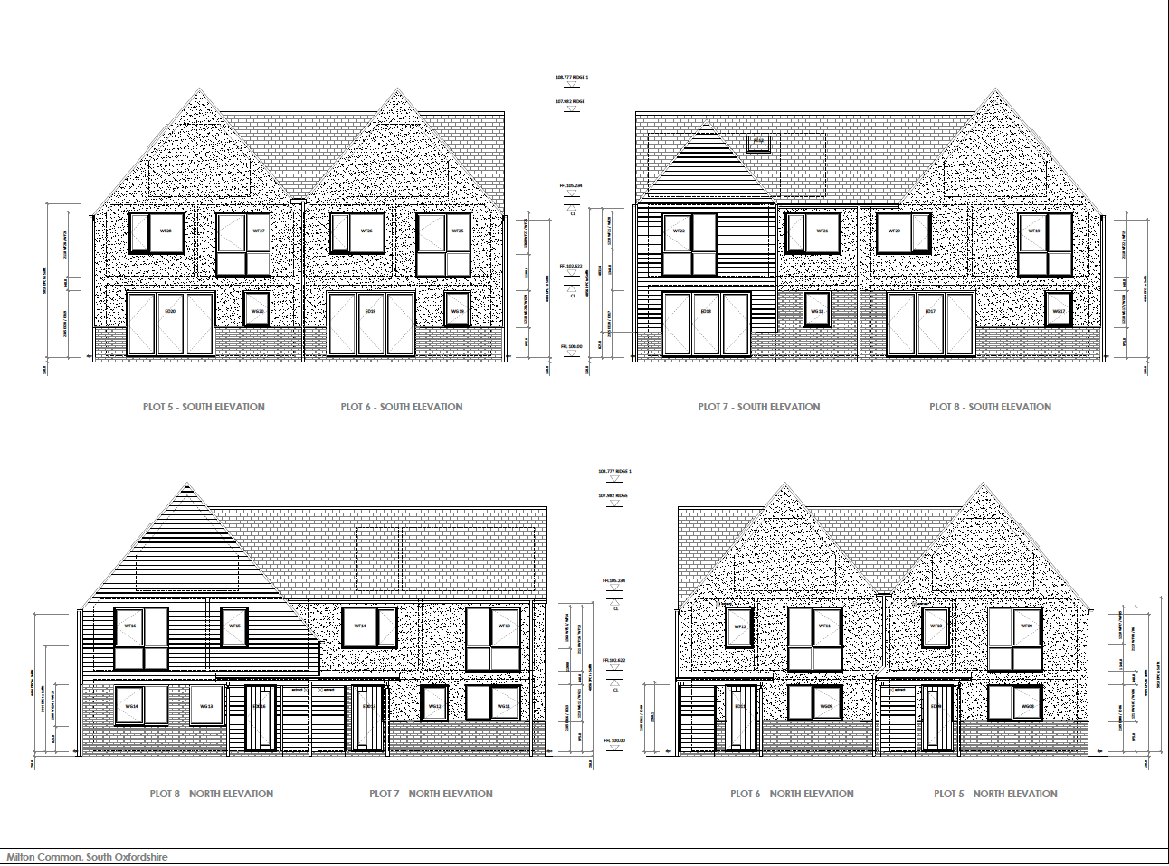
The Milestone is a small development of semi detached homes by Wilber Homes at Milton Common on the outskirts of rural Thame. This development has excellent road and rail access to Oxford, London and the midlands.
The beautiful rural town of Thame is just a few minutes drive from Milton Common and has excellent schools, shops, sporting facilities, pubs and restaurants.



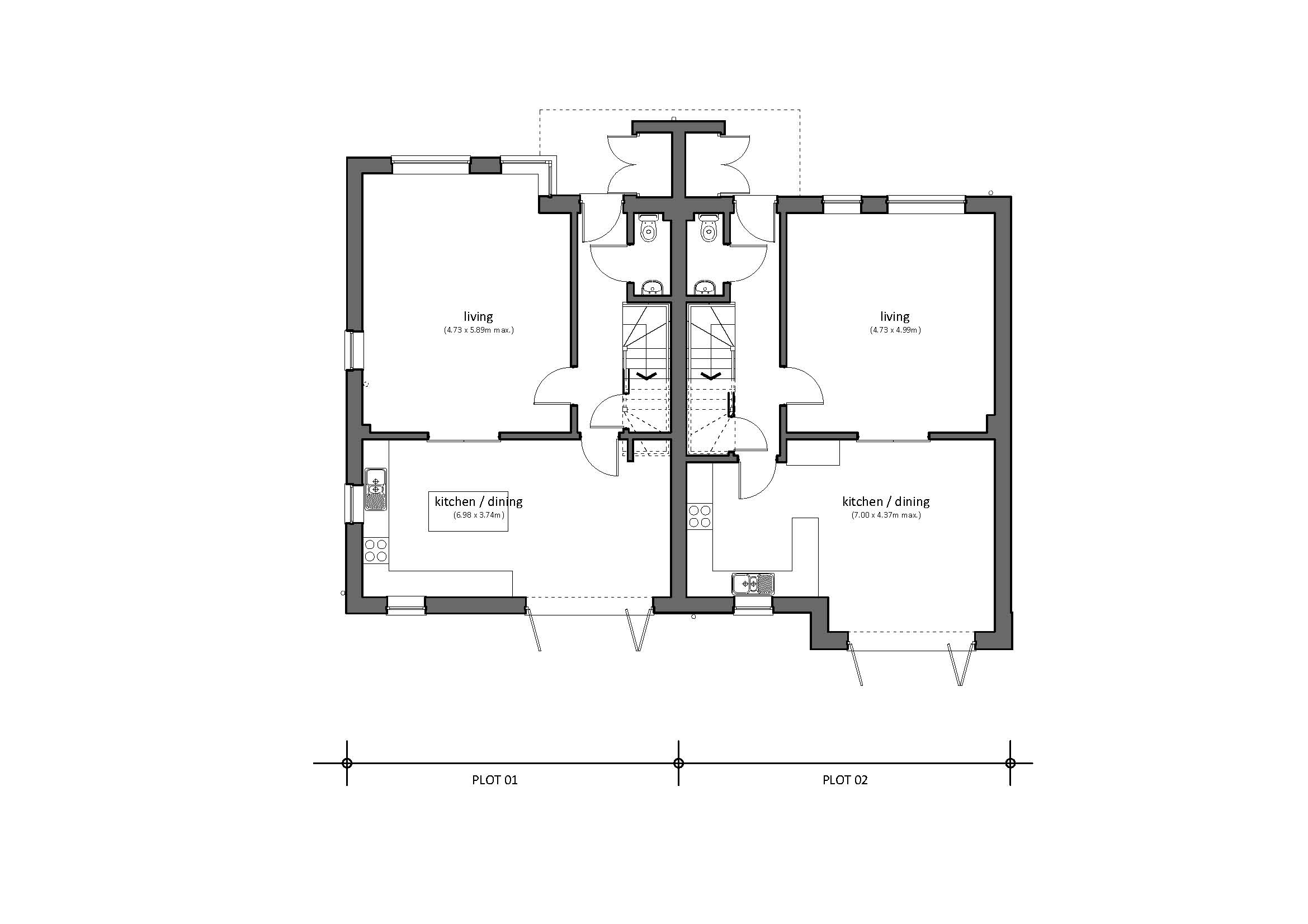
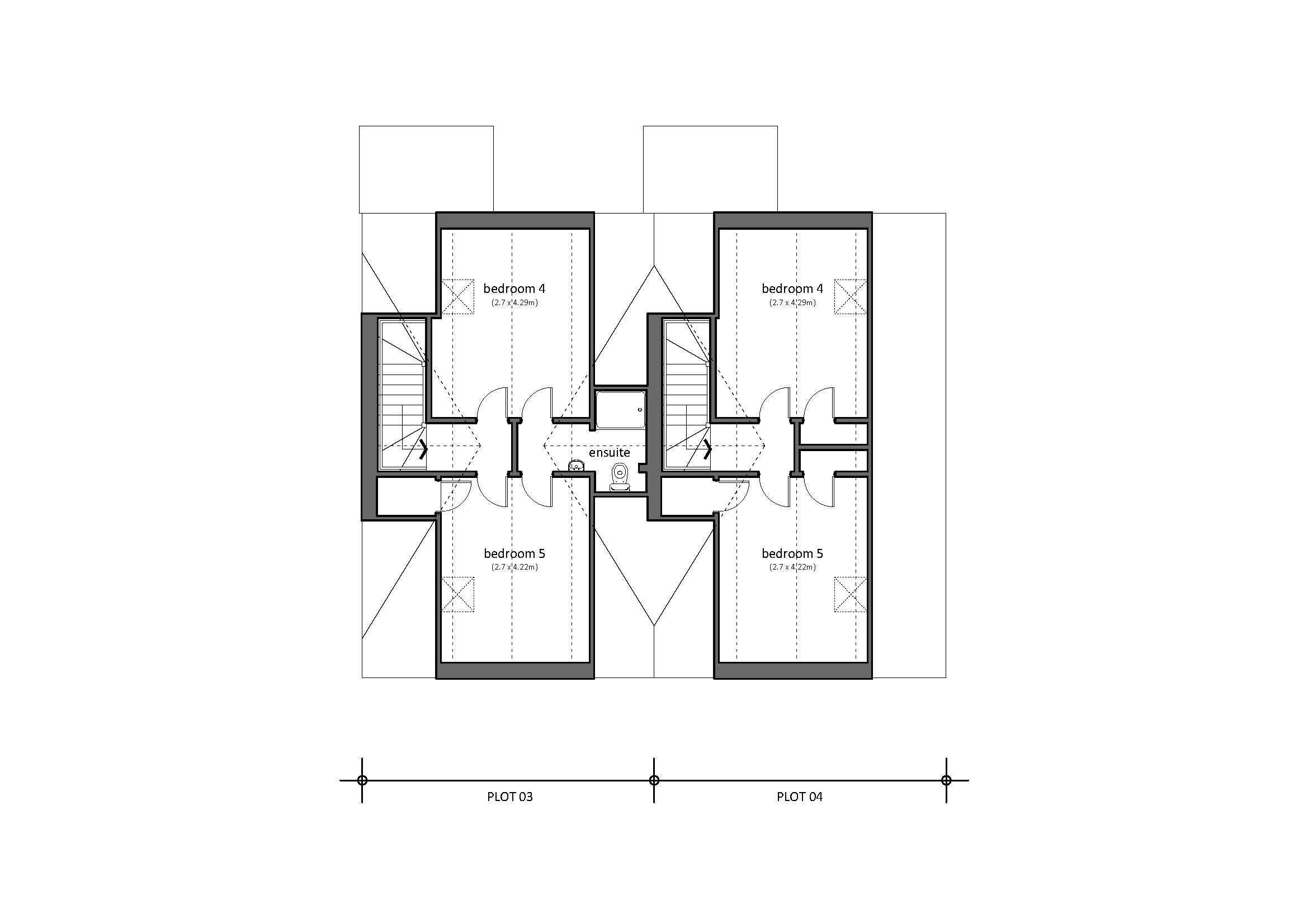
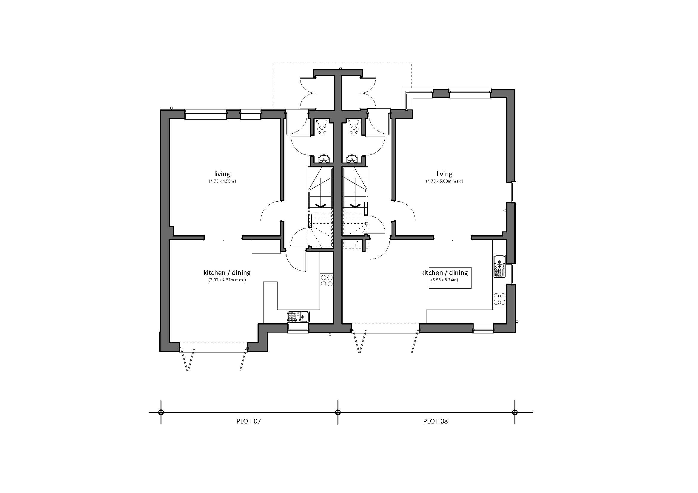
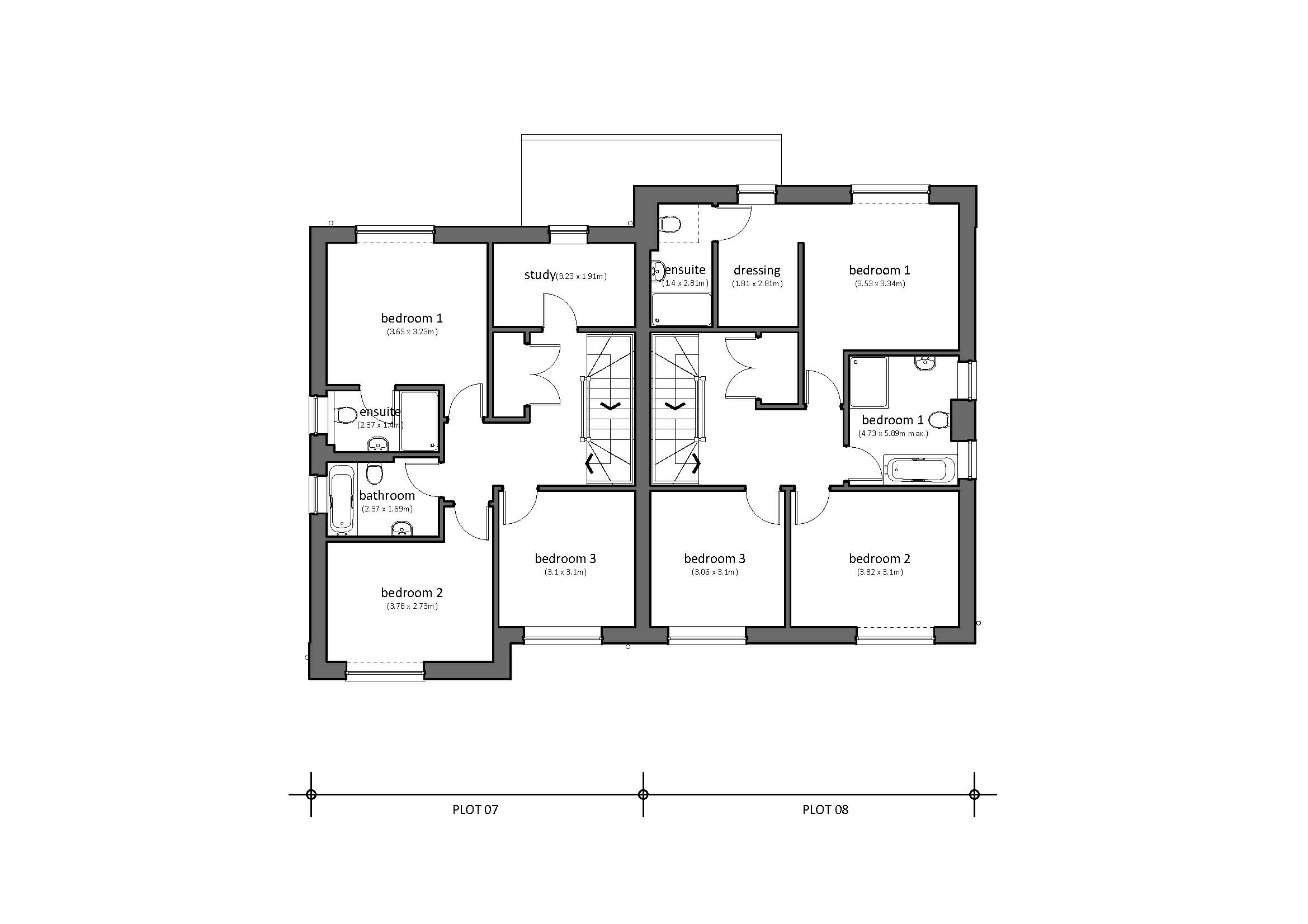
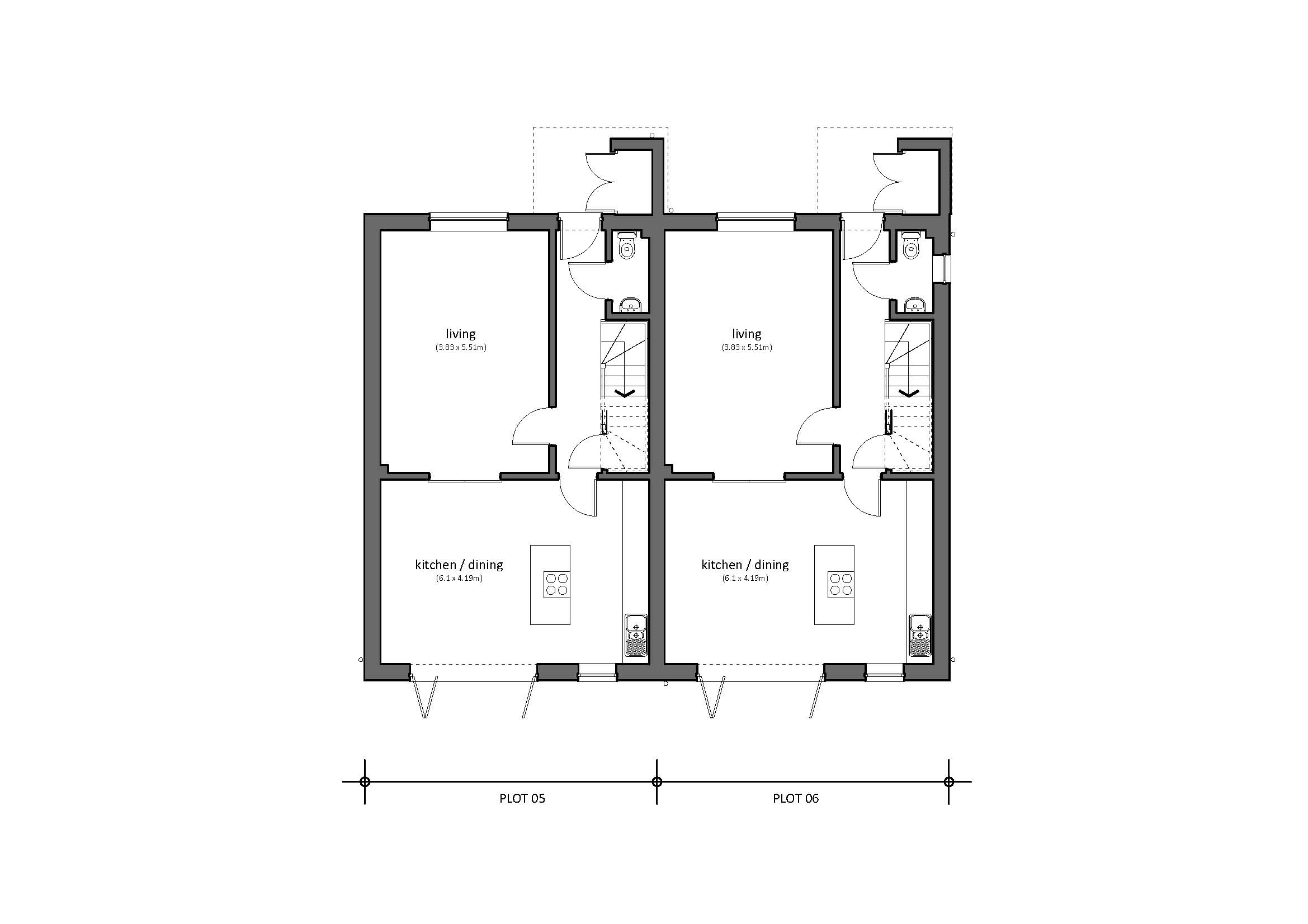
Our homes have been individually designed with striking architectural presence alongside exceptionally well planned accommodation. Each of the houses is designed to take full advantage of the setting and views. Internally the accommodation is well proportioned, complemented by faultless modern design and high end fixtures and fittings.